Terratetto in Vendita a Scandicci
Zona: Badia a Settimo
Scandicci - BADIA A SETTIMO
In contesto riservato con affacci sul verde, comodo a tutti i servizi, mezzi pubblici, a pochi minuti da Scandicci.
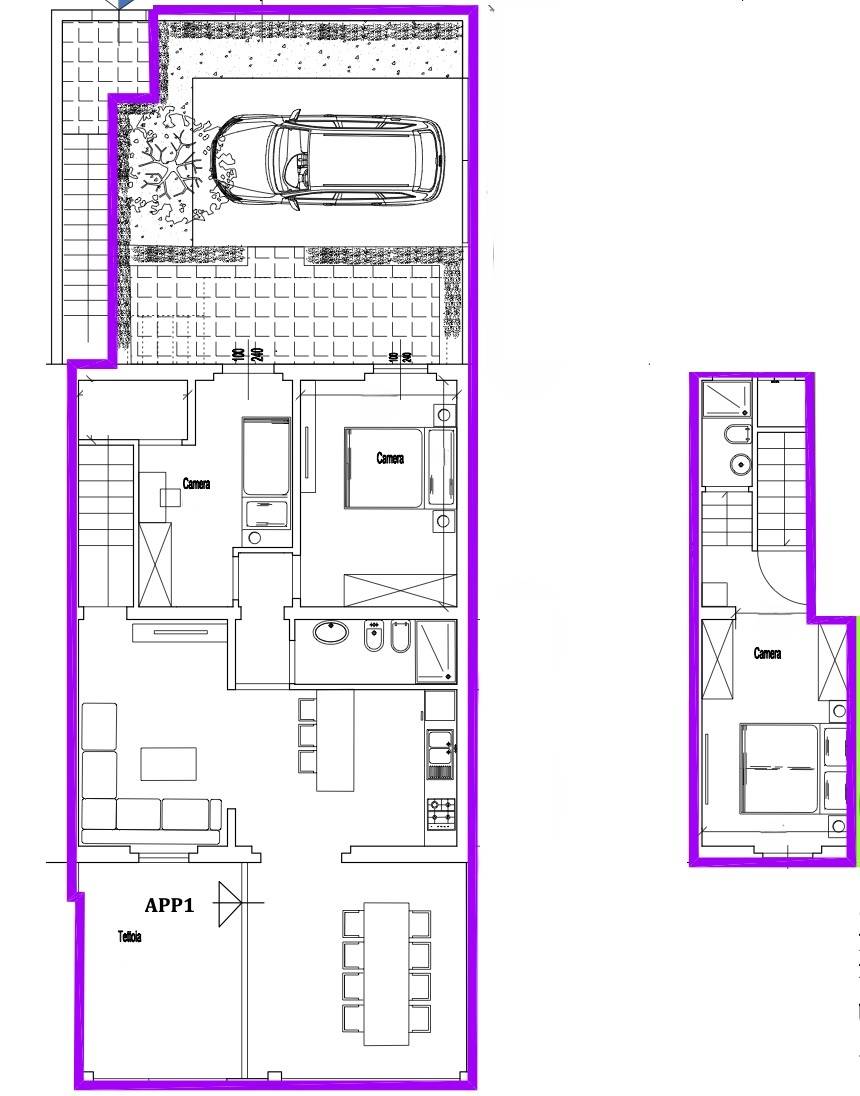
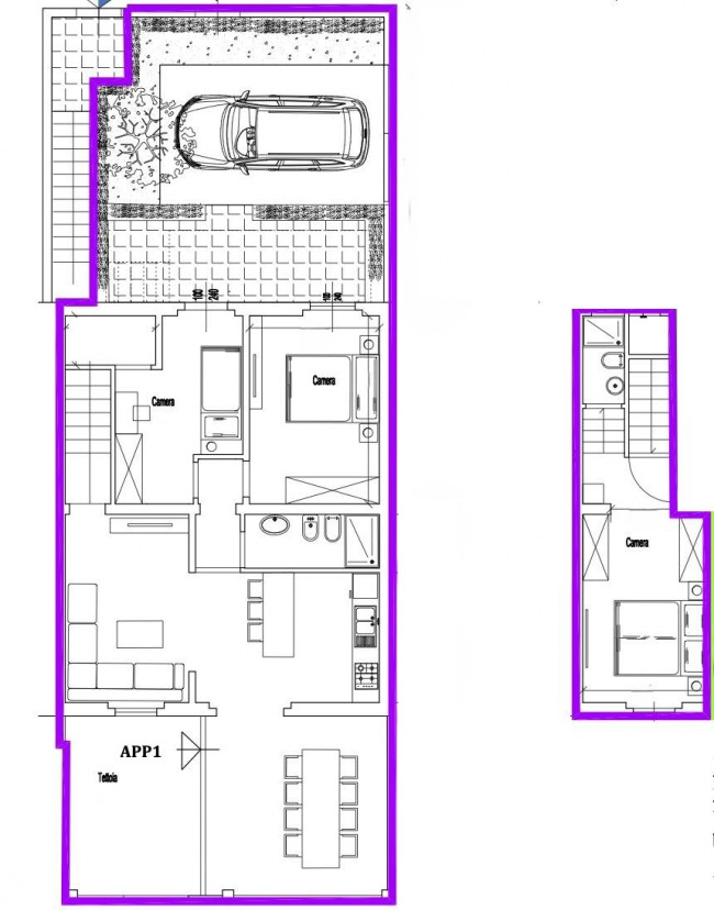
Terratetto in fase di COMPLETA RISTRUTTURAZIONE con RESEDE, POSTO AUTO e LOGGIA .
Ingresso indipendente dal resede di proprietà esclusiva. L'immobile è composto da luminosa zona giorno con cucina a vista, camera da letto matrimoniale, camera singola, servizio. Entrambe le camere si aprono su ulteriore resede.
Al piano superiore troviamo una camera matrimoniale e il secondo servizio.
L'immobile verrà consegnato finito e rifinito in tutte le sue parti con materiali di alta qualità .
Classe energetica A.
Richiesta Euro 428.000,00
RIF 577BO
Informazioni immobile
Codice: 577BO
Contratto: Vendita
Tipologia: Terratetto
Regione: Toscana
Provincia: Firenze
Comune: Scandicci
Zona: Badia a Settimo
Prezzo: € 428.000 trattabili
Totale mq: 100 mq
Camere: 3
Bagni: 2
Locali: 5
Stato conservazione: Ristrutturato
Piano: Su due livelli
Posto auto: Scoperto
Età costruzione: 1970
Stato attuale: Libero al rogito
Disponibile: Si
Esposizione: doppia
Balconi: Presente
Terrazzo: Presente
Giardino: Privato
Cucina: A Vista
Caratteristiche
Impianto Telefonico
Impianto Elettrico: A norma
Doccia
Porta BLINDATA
Impianto idraulico
Facciata esterna rifatta
Disimpegno
Citofono / Videocitofono
Nelle vicinanze
Palestre
Campi da Calcio
Complessi Sportivi
Campi da Tennis
Piste Ciclabili
Parchi Giochi
Stazione Ferroviaria
Trasporti Pubblici
Asilo
Scuole Elementari
Scuole Medie
Scuole Superiori
Bar
Uffici postali
Centri commerciali
Uffici comunali
Autostrada / Superstrada
Negozi
Virtual tour immobile
Mappa immobile
Condividi
Ultimo aggiornamento 22-10-2025
